2012年我又爆肝了,這是第二次我的肝在抗議了,那一天在辦公室終於想明白如果再繼續過這樣的生活,賺這樣的錢應該很快就會得到肝癌了! 唉...在經過多年的賣肝人生後,最後還是選擇了離開這個讓我很有成就感也得到不錯報酬的工作了!
休息了幾個月,轉眼就到年底了,我身體的狀況還是時好時壞的,總覺得不舒服! 想了想....老是待在家裡也不會變得更好,其實身體的過度使用總是要還回去的! 有在工作的時候,意志力和腎上腺素幫忙撐著,但是借來的總該是要還的啦....琢磨著應該找點事來做,就當作復健和運動吧! 其實我在2006年就買了一塊山坡農牧用地,多年來就一直放著長草然後割草再長草又割草....雖然當初也有計畫要蓋間農舍,但是一直沒付諸行動,我想或許這是該動手的時候了! But....沒有收入了還要花錢蓋房子,這也是讓人考慮再三的....不過某天夜裡突然一個轉念,就當作是投資吧!
再來就是計畫了! 首先,預算是我第一個要控制的,我要想辦法把造價壓低,來降低我的經濟負擔,所以能自己做的就要想辦法自己來! 第二. 無法忍受住鐵皮屋,我意思是那種保溫隔音差的那種....說真的我一直在認真考慮要自己蓋一間小屋,看起來最有機會自己動手做的就是木屋了,但是國內幾乎找不到對我有用的資訊,不過我以前工作時培養的網路搜尋技巧這就派上用場了,國外的網站就可以找到很多老美DIY cabin 木屋的影片了! 看了許多老美各種DIY後真的發現,人家國力強大也不是沒道理,民間真是太多奇才了,除了會做還很會屁! But ....評估再三....這種木屋還是不適合台灣的氣候環境! 很多在國外好的建材或工法,到台灣都水土不服,死光光....我想濕度高,溫差大再加上颱風和地震! 就像以前公司的產品在做設計驗證...高溫高濕測試,高低溫測試,振動測試和雨淋測試! 應該還是要回頭看看當地先民推崇的建築或許才是對的方向!

這個照片是我最喜歡的一間木屋,即使後來決定要蓋磚造的小屋也是用這個構型當基礎!在我蓋小屋的期間也是我Line 上面首頁的圖片!

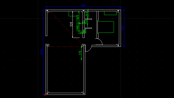
這是初始規劃的2種平面圖! 我大略劃了一下平面圖計算面積參考!

最後蓋出來的樣子! 大屋頂斜了一點,我給鐵工廠的圖和他出的圖基準差了30cm, 因為圖面太小看不太出來差異,直到鋼構組裝才發現...拆掉修改怕搞得亂七八糟! 就將就了....
其實大家最推崇的還是磚造的屋子,剛好鄰居有一戶外觀看起來是鋼構加清水磚,就順道過去拜訪參觀了一下! 他的房子是鋼結構的,牆面是一般的紅磚但是以清水磚的工法施作,但是因為工太貴所以只有正面是清水磚樣式,側背面就是磚牆加水泥粉光再上漆了,室內也是...看完也讓我感到一些挫折,蓋整間紅磚屋看來會讓我的預算爆了不知幾次,而且這年頭師傅也不愛做這種"搞鋼"的工作,大家總是喜歡不用大腦沒有風險的工作,想到預算和師傅難搞這兩件事就讓我幾乎打了退堂鼓,但是對的方向還是要走下去,不過後來Google 大神果然在一片黑暗中讓我看到了曙光!
要自己動手蓋前還是要先做一份可行的計畫,包含具體的樣式,結構及哪些部分可以自己做,哪些部分要外包,需要買的工具,材料還有欠缺的技能等等!其實我是有做了一份詳細的預算表包含外包的預算,材料和工具等,當然也用CAD 畫了平面和立體圖,私人文件就不公開了!
1.具體的樣式,結構-->鋼骨結構加8吋紅磚牆以清水磚工法施工


L型右邊是臥室,臥室床頭後面是浴廁,再過去是廚房!
2. 要外包的部分
基礎,灌漿,鋼骨結構-->要用到重機具沒法自己來所以要給人賺了
農業用電申請,電力布線-->事關安全而且要執照才能申請只能請專業做了,但是牆內的電管跟水管還是要我自己做,因為要配合砌磚的進度內崁!
鑽井-->還是要重機具,地下的大石頭都比我人還大顆,手挖到斷也挖不到水!
3.可以自己做的部分
砌牆-->透過Google 大神指引,我找到了這個砌牆神器,應該可以化不可能為可能了! 我是在2013年上網直接向英國廠商採購連運費整套超過3000元,現在國內有代理商進來了大概1100元,物超所值!有興趣的朋友可以買來砌花檯或烤肉架....不一定要蓋房子啦!
英國原廠: http://bricky.com/
台灣代理: http://www.suntrace.com.tw/service_49.htm

預留管布放-->包含水管和電管預置在磚牆中間
門窗安裝-->窗戶是訂做的鋁窗,自行安裝,門就是完全自己設計,製作安裝了
屋頂-->瓦片我選擇可樂瓦,也是透過Google 找到國外教學影片
天花板-->集層角材加矽酸鈣板,本來就會一點木工了所以自己來
衛浴設備-->水電我剛好也會一點點所以熱水器,水龍頭,馬桶,淋浴間就又省起來了
停車棚-->本來買了一堆南方松想自己做窗戶後來發現材質容易翹我的工具也不好處理所以就拿來蓋停車棚了
水塔--> 井不能自己挖但是安裝水塔跟配管我就會了
入口大鐵門-->買了電焊機想練習一下當然也要自己做了
傢俱廚具-->眼高手低的毛病,看上眼的都很貴,買的起的用起來不太爽....廚具跟床就自己做!

停車棚

鐵門還有信箱
下次再來一一詳述我蓋屋的過程了....
